34
$3,499,000 Sale
Listed 100 days ago
2653 Leonard Street
· 4
· 3
· 0
· 2995
Key Facts
Key facts for 2653 Leonard Street
Property Type
House, Two Story
Parking
0 garage, Private Drive Double Wide 6 parking
MLS #
40743260
Size
2995 sqft
Basement
Crawl Space,Unfinished
Listed on
2025-06-26
Lot size
-
Tax
$16,381.72 /yr
Days on Market
101
Year Built
1996
Maintenance Fee
-
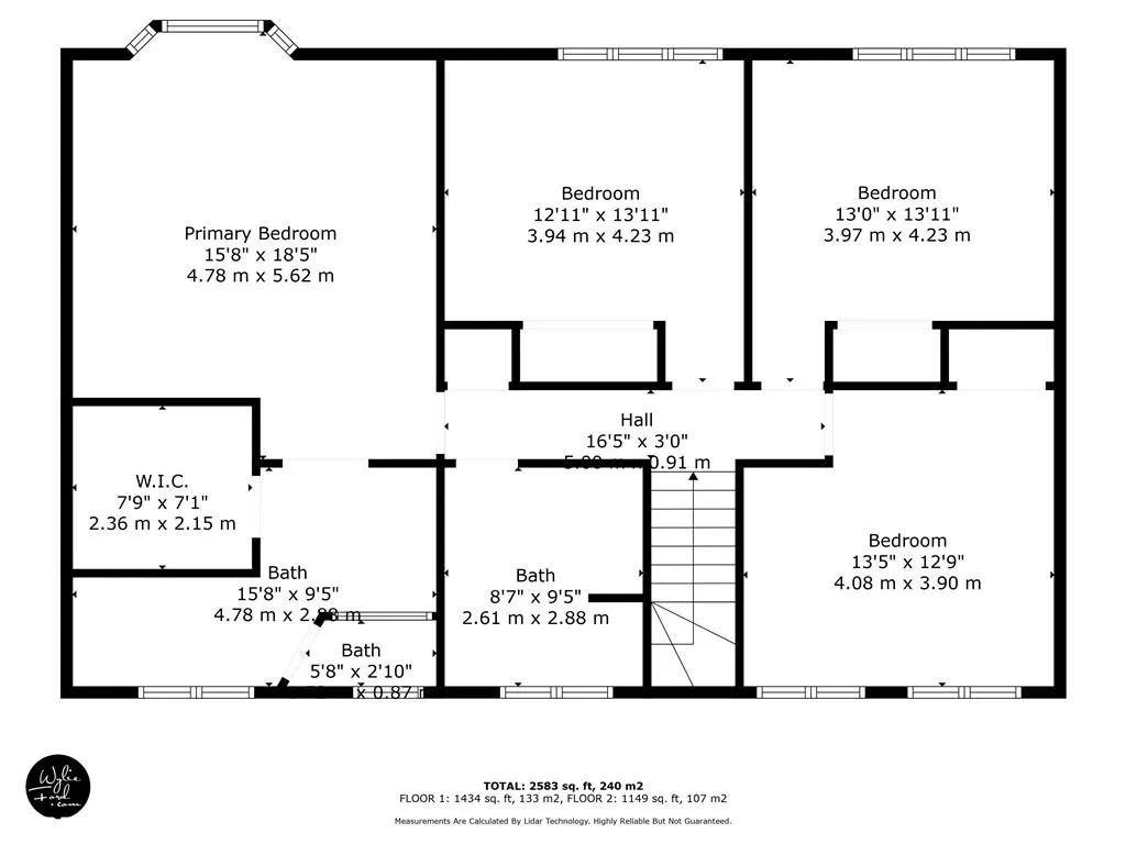
Description
Rare Lake Simcoe Gem – 150' of Prime Waterfront! Welcome to an extraordinary waterfront opportunity featuring 150 feet of hard-packed sandy shoreline, crystal-clear waters, and a panoramic island view. This Viceroy-built home offers nearly 3,000 sq ft of pristine living space over two levels, with ...4 bedrooms and 3 full baths. Enjoy large principal rooms and an open-concept kitchen/living area with breathtaking lake views through expansive windows, plus a walkout to a 37-foot concrete patio. The spacious family room boasts a gas fireplace and patio walkout, perfect for lakeside entertaining. Retreat to the generous primary suite with a bay window overlooking the water, walk-in closet, and luxurious 5-piece ensuite with separate water closet. Two additional bedrooms offer lake views, and a fourth provides added flexibility for guests or office space. Full concrete breakwall with cut in stairs to the water, full services (municipal water, sewer, gas), and an incredibly rare two-slip marine rail system leading to the concrete floor of a former boathouse (grandfathered). All main-floor windows/doors are fitted with electronic security/sun blinds. Bonus: dry concrete crawl space ideal for storage. Potential for lot severance (buyer to do due diligence). Located minutes from shopping, amenities, GO train, and excellent access to Hwy 400 & 11. This is a once-in-a-generation offering on one of Lake Simcoe's most desirable stretches of shoreline., Directions:10th Line to Leonard Street, Exclusions:None
Similar Properties (No results)
Listing courtesy of: RE/MAX Hallmark Chay Realty Brokerage